|
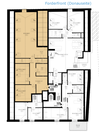
Traumhafte Dachgeschoß-Wohnung mit äußerst großzügigem Wohn-/Essbereich. Von dieser Wohnung haben Sie einen herrlichen Blick auf Aschach und die Donau. Fenster bzw. Dachfenster nach Norden, Osten und Süden, somit den ganzen Tag viel Licht.
| Gesamtwohnfläche: |
103,61 m2
|
| Wohnzimmer: |
44,66 m2
|
| Küche: |
5,33 m2
|
| Schlafzimmer 1: |
13,32 m2
|
| Schlafzimmer 2: |
13,78 m2
|
| Bad: |
6,25 m2
|
| WC: |
2,27 m2
|
| Schrankflur: |
14,97 m2
|
 |
|
| Abstellabteil: |
7,13 m2
|
| PKW-Abstellplatz |
|
Wohnungsplan vergrößert darstellen
Detailinformationen anfordern
Detailbeschreibung downloaden
Küchenplan downloaden
|
|
 |
Wohnungen
Erdgeschoß
> W1: 82,79 m2
Obergeschoß
> W2: 79,05 m2
> W3: 75,80 m2
> W4: 83,83 m2
> W5: 59,70 m2
Dachgeschoß
> W6: 54,38 m2
> W7: 91,57 m2
> W8: 103,61 m2
Baufortschritte
Lageplan
Infrastruktur
Geschichte des Hauses
Kontakt
Impressum
Home
|
 |