|
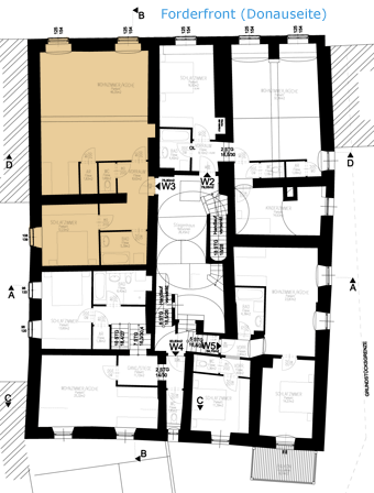
Diese zur Donau hin gelegene Wohnung punktet mit einem außergewöhnlich großzügigen Wohnbereich (Wohnzimmer/Küche 46 m2). Eine Raumaufteilung, die dieser Wohnung Loftcharakter verleiht.
| Gesamtwohnfläche: |
75,80 m2
|
| Wohnzimmer/Küche: |
46,05 m2
|
| Schlafzimmer: |
12,23 m2
|
| Bad: |
5,39 m2
|
| WC: |
1,68 m2
|
| Vorraum: |
8,62 m2
|
| Abstellraum: |
1,83 m2
|
 |
|
| Abstellabteil: |
7,13 m2
|
| PKW-Abstellplatz |
|
Wohnungsplan vergrößert darstellen
Detailinformationen anfordern
Detailbeschreibung downloaden
Küchenplan downloaden
|
|
 |
Wohnungen
Erdgeschoß
> W1: 82,79 m2
Obergeschoß
> W2: 79,05 m2
> W3: 75,80 m2
> W4: 83,83 m2
> W5: 59,70 m2
Dachgeschoß
> W6: 54,38 m2
> W7: 91,57 m2
> W8: 103,61 m2
Baufortschritte
Lageplan
Infrastruktur
Geschichte des Hauses
Kontakt
Impressum
Home
|
 |