|
Schöne 3-Zimmer-Wohnung mit großzügigem Wohn-/Essbereich und eigenem Balkon. Von dort haben Sie einen herrlichen Blick ins Grüne und Sonne ab Mittag.
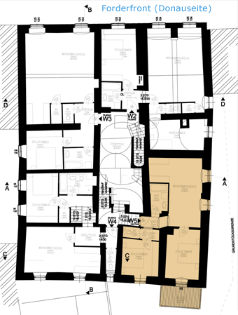
| Gesamtwohnfläche: |
59,70 m2
|
| Wohnzimmer/Küche: |
23,87 m2
|
| Schlafzimmer 1: |
14,07 m2
|
| Schlafzimmer 2: |
11,39 m2
|
| Bad: |
4,39 m2
|
| WC: |
1,36 m2
|
| Vorraum: |
4,62 m2
|
 |
|
| Abstellabteil: |
7,13 m2
|
| PKW-Abstellplatz |
|
Wohnungsplan vergrößert darstellen
Detailinformationen anfordern
Detailbeschreibung downloaden
Küchenplan downloaden
|
|
 |
Wohnungen
Erdgeschoß
> W1: 82,79 m2
Obergeschoß
> W2: 79,05 m2
> W3: 75,80 m2
> W4: 83,83 m2
> W5: 59,70 m2
Dachgeschoß
> W6: 54,38 m2
> W7: 91,57 m2
> W8: 103,61 m2
Baufortschritte
Lageplan
Infrastruktur
Geschichte des Hauses
Kontakt
Impressum
Home
|
 |