|
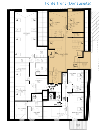
Traumhafte Dachgeschoß-Wohnung mit großzügigem Wohn-/Essbereich und eigener Terrasse. Von dieser haben Sie einen herrlichen Blick nach Süden, Richtung Kirche. Lassen Sie sich von der Sonne wecken. Die beiden Schlafzimmer liegen Richtung Osten, mit Blick auf die Donau.
| Gesamtwohnfläche: |
91,57 m2
|
| Wohnzimmer/Küche: |
46,25 m2
|
| Schlafzimmer 1: |
14,44 m2
|
| Schlafzimmer 2: |
14,98 m2
|
| Bad: |
4,88 m2
|
| WC: |
1,55 m2
|
| Flur/Vorraum: |
7,51 m2
|
| Abstellraum: |
1,96 m2
|
 |
|
| Abstellabteil: |
7,13 m2
|
| PKW-Abstellplatz |
|
Wohnungsplan vergrößert darstellen
Detailinformationen anfordern
Detailbeschreibung downloaden
Küchenplan downloaden
|
|
 |
Wohnungen
Erdgeschoß
> W1: 82,79 m2
Obergeschoß
> W2: 79,05 m2
> W3: 75,80 m2
> W4: 83,83 m2
> W5: 59,70 m2
Dachgeschoß
> W6: 54,38 m2
> W7: 91,57 m2
> W8: 103,61 m2
Baufortschritte
Lageplan
Infrastruktur
Geschichte des Hauses
Kontakt
Impressum
Home
|
 |