|
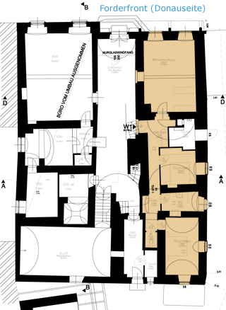
In der einzigen Erdgeschoßwohnung haben Sie sowohl Ausblick auf die Donaupromenade als auch in den Gartenbereich. Auch in der Wohnung spiegeln sich diese Gegensätze wider. Moderne Infrastruktur in Verbindung mit liebevoll renovierten Gewölbedecken.
| Gesamtwohnfläche: |
82,79 m2
|
| Wohnzimmer/Küche: |
31,53 m2
|
| Schlafzimmer 1: |
10,90 m2
|
| Schlafzimmer 2: |
16,52 m2
|
| Bad: |
7,26 m2
|
| WC: |
1,45 m2
|
| Vorraum/Gang: |
15,13 m2
|
 |
|
| Abstellabteil: |
7,13 m2
|
| PKW-Abstellplatz |
|
Wohnungsplan vergrößert darstellen
Detailinformationen anfordern
Detailbeschreibung downloaden
Küchenplan downloaden
|
|
 |
Wohnungen
Erdgeschoß
> W1: 82,79 m2
Obergeschoß
> W2: 79,05 m2
> W3: 75,80 m2
> W4: 83,83 m2
> W5: 59,70 m2
Dachgeschoß
> W6: 54,38 m2
> W7: 91,57 m2
> W8: 103,61 m2
Baufortschritte
Lageplan
Infrastruktur
Geschichte des Hauses
Kontakt
Impressum
Home
|
 |